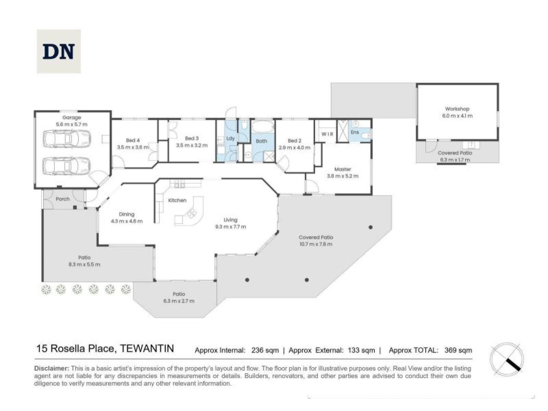
Positioned in a quiet cul-de-sac in the highly sought-after Old Tewantin, 15 Rosella Place offers spacious, practical family living on a generous 793m² block.
Designed for easy living and entertaining, the home features four bedrooms, including a master suite complete with walk-in robe and private ensuite. The remaining bedrooms are well-sized and serviced by a central bathroom.
At the heart of the home is an expansive open-plan living, dining, and kitchen zone, complemented by a separate secondary living area-ideal for families needing extra space or flexibility. The layout flows effortlessly outdoors to an impressive covered entertaining area, creating a seamless indoor-outdoor connection perfect for year-round enjoyment.
The backyard is private and fully fenced, with side access leading to a separate workshop/shed-ideal for a small boat, trailer, or additional storage.
The home offers a solid and comfortable residence with scope to update or personalise to your taste.
Located in a peaceful, family-friendly pocket close to local schools, shops, and the Noosa River, this is a fantastic opportunity to secure a home in one of Tewantin's most popular enclaves.
Please note: Furniture shown in marketing images has been digitally staged for illustrative purposes.